Описание:
Газовый напольный котел Лемакс Премиум 10 это стальное отопительное оборудование с открытой камерой сгорания, предназначенное для отопления помещений площадью до 100 м² и работающее на природном газе.
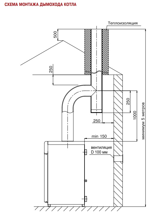
Тип камеры сгорания открытая (атмосферная). Это означает, что забор воздуха для горения осуществляется непосредственно из помещения, где установлен котел. Для отвода продуктов сгорания требуется подключение к вертикальному дымоходу с естественной тягой диаметром не менее 100 мм. Установка котла допускается только в помещениях с хорошей вентиляцией, обеспечивающей необходимый приток воздуха.
Конструкция котла представляет собой сварную конструкцию, образующую по всему периметру водяную рубашку. Теплообменник изготовлен из высококачественной стали, имеет инновационную конструкцию, теплоизоляционное покрытие и антикоррозийную обработку ингибирующим составом, что обеспечивает срок службы до 14 лет.
Тепловая мощность в номинальном режиме составляет 10 кВт. Этого достаточно для обогрева помещений площадью до 100 м² при высоте потолков 2,6 м и утеплении здания по СНиП.
Коэффициент полезного действия (КПД) достигает 90%, что гарантирует эффективное использование природного газа и снижение затрат на отопление.
Объем теплоносителя в теплообменнике составляет 16,5 литра. Ориентировочный объем воды в системе отопления для данной модели — 150 литров (точное значение определяется проектом).
Максимальная температура воды на выходе из котла 90 °C. Рекомендуется эксплуатировать котел при температуре теплоносителя не ниже 50 °C, чтобы избежать обильного образования конденсата и повышенного коррозийного износа.
Температура уходящих газов составляет не менее 110 °C, что обеспечивает стабильную тягу при правильно спроектированном дымоходе.
Средний расход природного газа — 0,6 м³/час.
Номинальное давление газа на входе должно составлять 1300 Па (13 мбар).
Диапазон разрежения, при котором обеспечивается устойчивая работа котла, — 4–25 Па.
Диаметр подсоединяемых патрубков для системы отопления (подача и обратка) — 1 1/2 дюйма.
Газогорелочное устройство оснащено итальянской автоматикой безопасности «630 EUROSIT» и инжекционной горелкой Polidoro. Управление осуществляется круглой ручкой на передней панели.
Пьезовоспламенитель (кнопка на панели управления) позволяет зажигать пилотную горелку без использования спичек.
Терморегулятор с ручкой, имеющей деления, позволяет устанавливать желаемую температуру теплоносителя. Положение «7» на ручке соответствует максимальной температуре 80 °C (при соблюдении условий эксплуатации). При достижении заданной температуры термостат автоматически уменьшает подачу газа, при понижении — возобновляет.
Функция контроля пламени обеспечивается термопарой, которая при погасании пламени перекрывает подачу газа.
Датчик тяги контролирует наличие разрежения в дымоходе. При недостаточной тяге подача газа блокируется.
Смотровое окно позволяет визуально контролировать процесс горения.
Устройство для подключения к системе отопления выполнено в виде резьбовых патрубков на задней поверхности котла.
Предохранительный клапан на 1,5 кгс/см² (0,15 МПа) необходимо установить на расстоянии не более 150 мм от места присоединения вентиля для заполнения системы отопления. Это предотвращает повышение давления выше допустимого.
Возможность работы без электричества котел не требует подключения к электрической сети, так как автоматика и розжиг не зависят от электропитания.
Возможность работы в системах с естественной или принудительной циркуляцией котел эффективно работает как в открытых, так и в закрытых системах отопления, с насосом или без него.
Требования к помещению: объем помещения не менее 8 м³, расстояние от котла до стен: сзади — не менее 150 мм, справа и слева — не менее 100 мм, спереди — не менее 1000 мм. В помещении должна быть естественная вентиляция.
Требования к дымоходу: конструкция должна соответствовать СП 42-101-2003. При замене старого котла с более низким КПД на современный (с КПД 90%) необходимо проверить утепление дымохода, так как температура уходящих газов снижается до 110–120 °C, что может привести к ухудшению тяги.
Защита от замерзания: котел не имеет автоматической защиты от замерзания. При длительном неиспользовании в зимнее время рекомендуется слить воду из системы отопления.
Гарантийный срок эксплуатации котла составляет 36 месяцев (3 года) при условии ежегодного профилактического обслуживания и соблюдения правил монтажа и эксплуатации.
















